Продава се Тристаен апартамент в Варна, Погреби – 93 кв.м за 1484 €/кв.м

  • 138,000€
  • 1,484€/m²
Област Варна, гр. Варна, Погреби
  • Апартамент
  • Тип на имота
  • 93
  • кв.м
  • 2025
  • Година на строителство
За продажба Агенция
Област Варна, гр. Варна, Погреби
  • 138,000€
  • 1,484€/m²

Накратко за имота

  • Апартамент
  • Тип на имота
  • 93
  • кв.м
  • 2025
  • Година на строителство

Описание

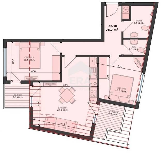
ЕРА Лайф обявява за продажба тристаен апартамент с площ 93,46 кв.м. (застроена площ 78,7 кв.м.), разположен на трети етаж от осем в новострояща се сграда пред разрешително за строеж. Имотът е със следното разпределение: входно антре, дневен тракт с открит кухненски бокс – 22,1 кв.м. с излаз на тераса – 4,3 кв.м., две спални (10,5 и 11,6 кв.м.), баня – 4,4 кв.м. и тоалетна – 21 кв.м. Виж раздел “План”. Имотът е със статут на апартамент.

Изложение на имота: юг. Апартаментът ще бъде завършен по БДС стандарт – на шпакловка и замазка с поставена ПВЦ дограма и входна блиндирана врата. Отоплението е на ток. Продава се без обзавеждане.

Обявеният за продажба апартамент е част от сграда с монолитна стоманенобетонна конструкция, с носещи и преградни стени, изградени от тухли, с външна топлоизолация фибран и минерална мазилка. Общите части ще бъдат луксозно изпълнени с гранитогрес. Функционира асансьор с автоматични врати. Районът около сградата е озеленен.

Районът е с добра локация – пешеходно разстояние до централната градска част. В близост има основно училище, детски градини, търговски обекти, заведения за обществено хранене, Колхозен пазар. Имотът е подходящ както за живеене, така и за инвестиция. Код: 0708425

Оферта №0708425

Детайли

Обновено на януари 1, 1970 в 12:00 am
  • Цена: 138,000€
  • Квадратура: 93 кв.м
  • Стаи: 3
  • Година на строителство: 2025
  • Тип на имота: Апартамент
  • Операция: За продажба

Допълнителни детайли

  • Строителство: Тухла
  • Етаж: 3-ти
  • Брой етажи на сградата: 8
  • Отопление: Електричество
  • Обзавеждане: Необзаведен
  • Състояние на сградата: В строеж
  • Преход: Без преход

Особености

  • Град Варна
  • Област Област Варна
  • Квартал Погреби
  • Държава България

0 Отзив

Sort by:
Leave a Review

    Leave a Review

    Compare listings

    Сравняване
    Olx Недвижими Имоти
    • Olx Недвижими Имоти