Продава се Тристаен апартамент в Варна, Виница – 133 кв.м за 1300 €/кв.м

  • 172,900€
  • 1,300€/m²
Област Варна, гр. Варна, Виница
  • Апартамент
  • Тип на имота
  • 133
  • кв.м
  • 2025
  • Година на строителство
За продажба Агенция
Област Варна, гр. Варна, Виница
  • 172,900€
  • 1,300€/m²

Накратко за имота

  • Апартамент
  • Тип на имота
  • 133
  • кв.м
  • 2025
  • Година на строителство

Описание

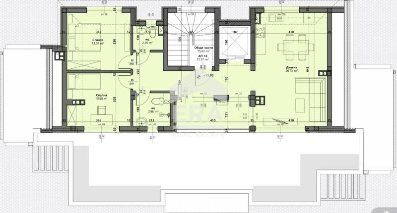
ЕРА Варна Тренд предлага за продажба голям тристаен апартамент в начален етап на новострояща се сграда, в кв. Виница, в близост до центъра. Имотът е със застроена площ 91,97 кв.м (133 кв.м с общите части), разположен на пети, последен етаж. Състои се от входно антре, просторна дневна с кухненски бокс (26,73 кв.м), спалня (10,98 кв.м), втора спалня (12,04 кв.м) с излаз на тераса (6 кв.м), баня с тоалетна (3,96 кв.м) и самостоятелна тоалетна (2,39 кв.м). Изложението е юг/север. Ще се открива красива морска панорама.

Жилището се продава необзаведено. Ще бъде завършено до степен БДС, с поставена ПВЦ дограма. Отоплението ще бъде с електричество.

Тристайният апартамент се намира в пететажна тухлена сграда с асансьор, на начален етап на строителство. Очаква се да бъде въведена в експлоатация през 2027 г. Предвидена е разсрочена схема на плащане: 30% на Предварителен договор; 30% на Акт 14; 30% на Акт 15; 10% на Акт 16. Предлагат се и други тристайни, както и двустайни жилища. Има възможност за допълнително закупуване на открито паркомясто на цена 5 000 евро.

Оферта №0220813

Детайли

Обновено на януари 1, 1970 в 12:00 am
  • Цена: 172,900€
  • Квадратура: 133 кв.м
  • Стаи: 3
  • Година на строителство: 2025
  • Тип на имота: Апартамент
  • Операция: За продажба

Допълнителни детайли

  • Строителство: Тухла
  • Етаж: 5-ти
  • Брой етажи на сградата: 5
  • Отопление: Електричество
  • Обзавеждане: Необзаведен
  • Състояние на сградата: В строеж
  • Преход: Без преход

Особености

  • Град Варна
  • Област Област Варна
  • Квартал Виница
  • Държава България

0 Отзив

Sort by:
Leave a Review

    Leave a Review

    Compare listings

    Сравняване
    Olx Недвижими Имоти
    • Olx Недвижими Имоти