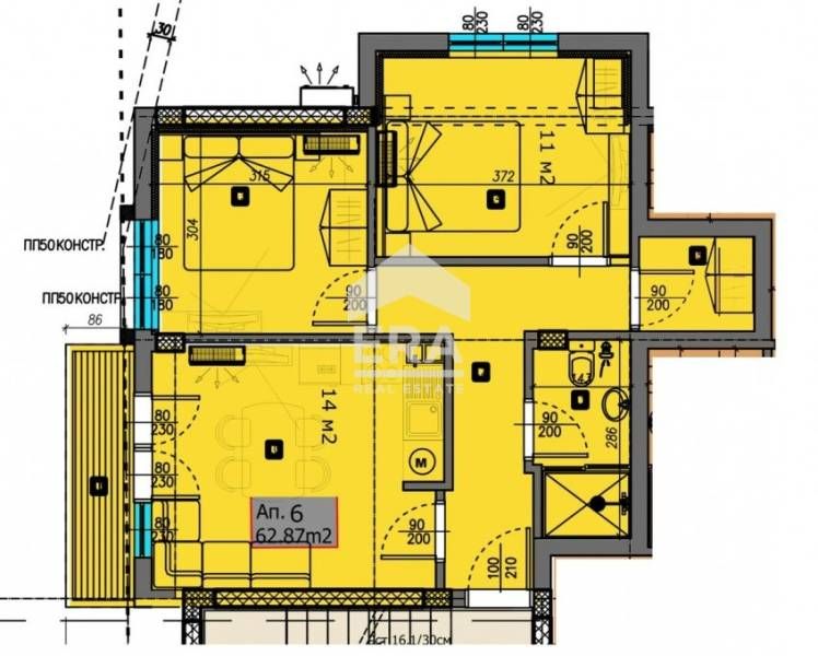
ЕРА Лайф обявява за продажба тристаен имот с площ 70,20 кв.м. /застроена площ 62,87 кв.м./, разположен на трети етаж в предстоящ строеж на малка жилищна сграда. Имотът е със следното разпределение: входно антре, дневен тракт с кухненска част с излаз на тераса, две спални, килер и комбиниран санитарен възел. Жилището е със статут на апартамент.
Изложение: изток/юг. Имотът ще бъде завършен по БДС стандарт – стените и таваните са на шпакловка, а подовете на замазка. Без довършителни работи. Дограмата е ПВЦ. Входната врата е метална с добри шумо- и топлоизолационни качества. Продава се без обзавеждане.
Електроинсталация – изградена до ключове и контакти, но без осветителни тела.
ВиК инсталация – на тапа. Отопление – на ток.
Старт на строежа – лятото на 2025година. Въвеждане в експлотация 2026г. Достъпът до имота е асфалтов. Пространството около сградата ще бъде облогородено с жива растителност.
Предлаганото жилище се намира в район Виница – добра транспортна връзка с центъра на Варна чрез автобусни линии № 29, 31, 31А, разположен на около 7 км. от центъра на морския град.
В близост се намира к.к. “Св. Св. Константин и Елена” – един от най-старите и предпочитани морски курорти в България. В квартала има училище, детски градини, медицински център и аптеки, супермаркети (CBA, MyMarket), малки магазини и пазари за хранителни продукти. Имотът е подходящ както за живеене, така и за инвестиция с цел отдаване под наем. Код: 0708373
Оферта №0708373
Compare listings
Сравняване