Продава се Тристаен апартамент в Варна, Виница – 97 кв.м за 1718 €/кв.м

  • 166,591€
  • 1,717€/m²
Област Варна, гр. Варна, Виница
  • Апартамент
  • Тип на имота
  • 97
  • кв.м
  • 2027
  • Година на строителство
За продажба Агенция
Област Варна, гр. Варна, Виница
  • 166,591€
  • 1,717€/m²

Накратко за имота

  • Апартамент
  • Тип на имота
  • 97
  • кв.м
  • 2027
  • Година на строителство

Описание

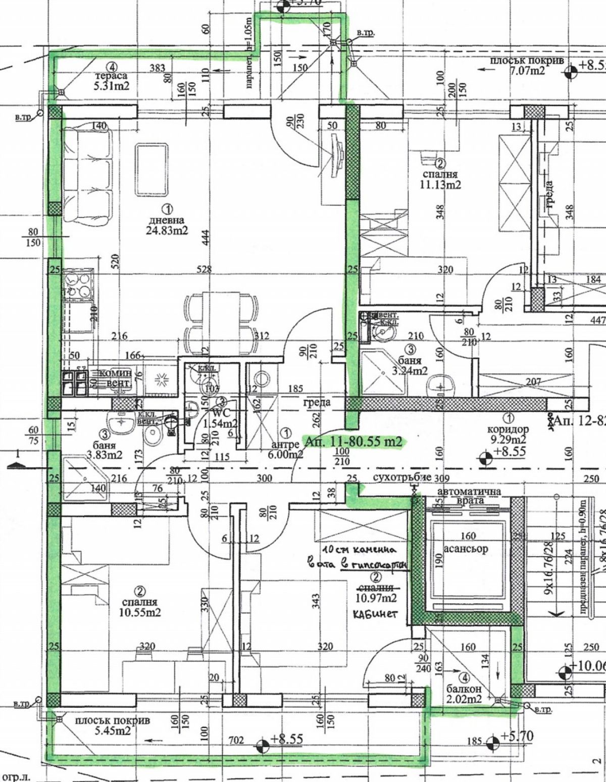
Агенция FlatHouse продава тристаен тухлен апартамент в сграда, която ще бъде построена в централната част на кв. Виница, гр. Варна.

Жилището ще бъде с площ 80.55 кв.м 97.99 кв.м с общите части, разположено на етаж 4 от общо 5. Разпределението на имота е както следва:

*антре – 6 кв.м

*дневен тракт с кухня – 24.83 кв.м

*спалня – 10.97 кв.м

*спалня – 10.55 кв.м

*баня – 3.83 кв.м

*WC – 1.54 кв.м

* тераса – 5.31 кв.м

*балкон – 2.02 кв.м.

Към апартамента има маза с площ 2.36 кв.м. Може да бъде закупено паркомясто в двора на сградата с площ 12.50 кв.м.

Общите части на сградата ще бъдат завършени с гранит, алуминиеви парапети, структурна мазилка, луксозен асансьор, стилно и елегантно фоайе. Фасадата ще бъде изпълнена с външна хастарна мазилка, 10см топлоизолация и силиконова мазилка. Апартаментите ще се издават по БДС, а за удобство на клиента се предлага и довършване до ключ.

За повече информация и огледи – 08******79

Детайли

Обновено на януари 1, 1970 в 12:00 am
  • Цена: 166,591€
  • Квадратура: 97 кв.м
  • Стаи: 3
  • Година на строителство: 2027
  • Тип на имота: Апартамент
  • Операция: За продажба

Допълнителни детайли

  • Строителство: Тухла
  • Етаж: 4-ти
  • Брой етажи на сградата: 5
  • Отопление: Без отопление
  • Обзавеждане: Необзаведен
  • Състояние на сградата: В строеж
  • Преход: Без преход
  • Град Варна
  • Област Област Варна
  • Квартал Виница
  • Държава България

0 Отзив

Sort by:
Leave a Review

    Leave a Review

    Compare listings

    Сравняване
    Olx Недвижими Имоти
    • Olx Недвижими Имоти