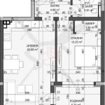
Агенция за недвижими имоти ”ДАНИ КОНСУЛТ” предлага на своите клиенти за продажба тристаен апартамент в гр. Горна Оряховица. Имотът е 78 кв.м, разположено на четвърти /непоследен/ етаж от панелна жилищна сграда, изложението е север/юг, общите части са добре поддържани. Апартаментът има следното разпределение: коридор, всекидневна с кухненска част, три спални, балкон, баня и тоалетна. Жилището е изцяло ремонтирано, направена е вътрешна и външна изолация, дограмата е PVC, подовите настилки са ламинат и теракот. За отопление е монтиран електрически котел с радиатори, охлаждането е посредством климатик. Апартаментът е обзаведен и оборудван с всички необходими мебели и ел. уреди, продава се във вида от снимките, готов за незабавно нанасяне. Локацията е отлична, в близост се намират автобусни спирки, магазини, бензиностанция, училище и други.
Това наше предложение може да се окаже подходящо за Вашият нов дом или за закупуване с цел инвестиция.
Брокер на офертата: Димитринка Стоянова
Техническа и юридическа обезпеченост на всички сделки! Безплатно съдействие за банков кредит!
Горепосочените снимки и информация са предоставени и одобрени от собственика, същите са публикувани с неговото съгласие!
ТРАНСПОРТНИ И ХАМАЛСКИ УСЛУГИ.
Почистване на апартаменти, стари къщи. Изнасяне на стари мебели, почистване на мазета и тавани, парцели, косене на тревни площи.
Compare listings
Сравняване