БЕЗ КОМИСИОННА ОТ КУПУВАЧА!!
Монс Пропъртис има удоволствието да ви представи тристаен апартамент за продажба в гр. В.Търново , кв. “Бузлуджа” .
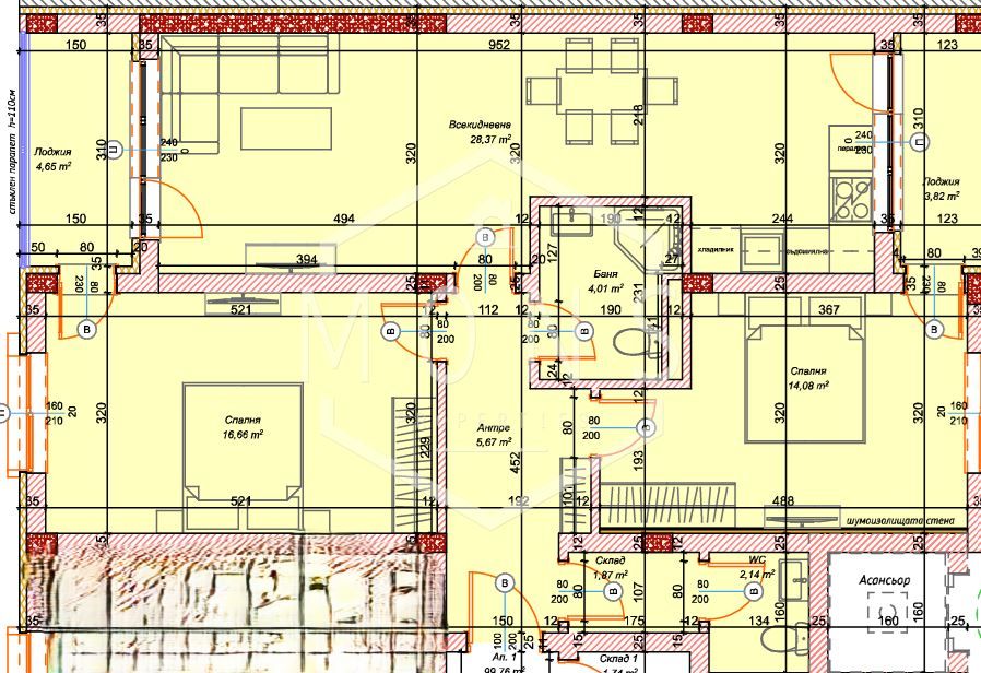
Общата площ на имота е 115кв.м., а ЗП – 99 кв.м.
Ситуиран е на първи жилищен етаж над гаражи от пететажна, новострояща се тухлена сграда.
Разпределението е както следва: входно антре, всекидневна с кухненски бокс, две спални, баня и тоалетна, тераса.
Отоплението е електричество.
„Кьомерлинг система“ – висококачествена профилна PVC дограма, известна с петкамерни конфигурации. На покрива на сградата е изградена фотоволтаична система, предназначена за захранване на общите части, което допринася за намаляване на месечните разходи за собствениците.
Апартаментът е подходящ за семейства, търсещи уют и удобство.
За живущите в комплекса са предвидени гаражи и паркоместа, които се закупуват отделно от апартаментите.
Сградата ще е със съвременна визия и луксозни общи части.
Етап на строителство – Акт 14.
Очакван Акт 15 – м. Август 2025г, очакван Акт16 – м. Април 2026г.
Схема на плащане- индивидуално спрямо клиента.
Квартал Бузлуджа се отличава със своето преимуществено разположение. Наоколо можете да намерите разнообразие от магазини, училища и зелени площи, идеални за разходки и отдих.
С лесен достъп до обществения транспорт и основните пътни артерии, този апартамент предлага удобство за всеки модерен начин на живот.
Код на офертата: 0099
Ние от Монс Пропъртис можем да Ви съдействаме със следните услуги:
-Безплатно посредничество при кредитиране
от всички банки
-Юридически услуги
Two-bedroom apartment for sale in town of. Apartment for sale in a new building in V.Tarnovo , kv. “Buzludja” .
NO COMMISSION FROM THE BUYER!!
Mons Properties is pleased to present a two bedroom apartment for sale in the town of. V.Tarnovo , sq. “Buzludja” .
The total area of the property is 115 sq.m. and the area – 99 sq.m.
It is situated on the first floor above the garages of a five-storey, newly built brick building.
The layout is as follows: entrance hall, living room with kitchenette, two bedrooms, bathroom and toilet, terrace.
Heating is electric.
“Kömerling system” – high quality profile PVC windows, known for five-chamber configurations. On the roof of the building is a photovoltaic system designed to power the common areas, which contributes to reducing the monthly costs for the owners.
The apartment is suitable for families looking for comfort and convenience.
Garages and parking spaces are provided for residents and are purchased separately from the apartments.
The building will have a contemporary look and luxurious common areas.
Stage of construction – Act 14.
Expected Act 15 – m. August 2025, expected Act 16 – m. April 2026.
Payment scheme – individual to the client.
Buzludzha district is distinguished by its advantageous location. Around you can find a variety of shops, schools and green areas, ideal for walks and recreation.
With easy access to public transport and major thoroughfares, this apartment offers convenience for any modern lifestyle.
0099
We at Mons Properties can assist you with the following services:
-Free credit mediation
from all banks
-Legal services
Compare listings
Сравняване