Продава се Тристаен апартамент в Велико Търново, Център – 88 кв.м за 1535 €/кв.м

  • 135,000€
  • 1,534€/m²
Област Велико Търново, гр. Велико Търново, Център
Продава се Тристаен апартамент в Велико Търново, Център - 88 кв.м за 1535 €/кв.м - Снимка #4 Продава се Тристаен апартамент в Велико Търново, Център - 88 кв.м за 1535 €/кв.м - Снимка #5
  • Апартамент
  • Тип на имота
  • 88
  • кв.м
  • 2022
  • Година на строителство
За продажба Агенция
Област Велико Търново, гр. Велико Търново, Център
  • 135,000€
  • 1,534€/m²

Накратко за имота

  • Апартамент
  • Тип на имота
  • 88
  • кв.м
  • 2022
  • Година на строителство

Описание

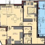
НОВО СТРОИТЕЛСТВО! ВИКТОРИЯ ИМОТИ предлага само за свои клиенти тристаен апартамент в близост до основния булевард Н. Габровски и същевременно на спокойно място. Чистата жилищна площ е 61.84 кв. м. разпределени между дневна с обособена кухненска част, две спални от, коридор, баня-тоалетна и две тераси. Степента на завършеност на имота ще бъде – завършени подови настилки, стени- шпакловани и боядисани, баня/тоалетна завършена, оборудвана и изцяло заредена. Интериорни врати, както и качествена входна врата. Параметрите на имота са добри – намира се на втори междинен етаж и е с изложение С/И. Към имота също така има и ИЧ от 11.42 кв. м. и склад от 7.28 кв. м. Към имота има включено паркомясто с площ от 19.18кв. м. Сградата ще бъде въведена в експлоатация /т.е. има Акт 16/ през 2025г.

12997

Детайли

Обновено на януари 1, 1970 в 12:00 am
  • Цена: 135,000€
  • Квадратура: 88 кв.м
  • Стаи: 3
  • Година на строителство: 2022
  • Тип на имота: Апартамент
  • Операция: За продажба

Допълнителни детайли

  • Строителство: Тухла
  • Етаж: 2-ри
  • Брой етажи на сградата: 6
  • Отопление: Електричество
  • Обзавеждане: Полуобзаведен
  • Състояние на сградата: Завършена
  • Преход: Без преход
  • Град Велико Търново
  • Област Област Велико Търново
  • Квартал Център
  • Държава България

0 Отзив

Sort by:
Leave a Review

    Leave a Review

    Compare listings

    Сравняване
    Olx Недвижими Имоти
    • Olx Недвижими Имоти