Тристаен апартамент ново строителство намиращ се в Картала на тихо и спокойно, но същевременно в близост до всички необходими удобства място, които предлага този така силно предпочитан за живеене квартал във В. Търново. Самата жилищна кооперация ще се отличава с изключително качество на използваните материали, широки общи части,10 – см, което създава отлична визия на обекта.
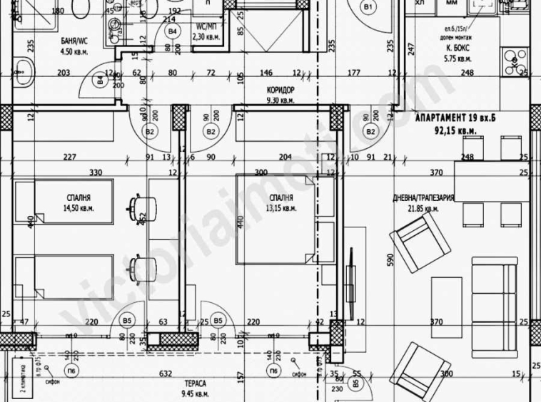
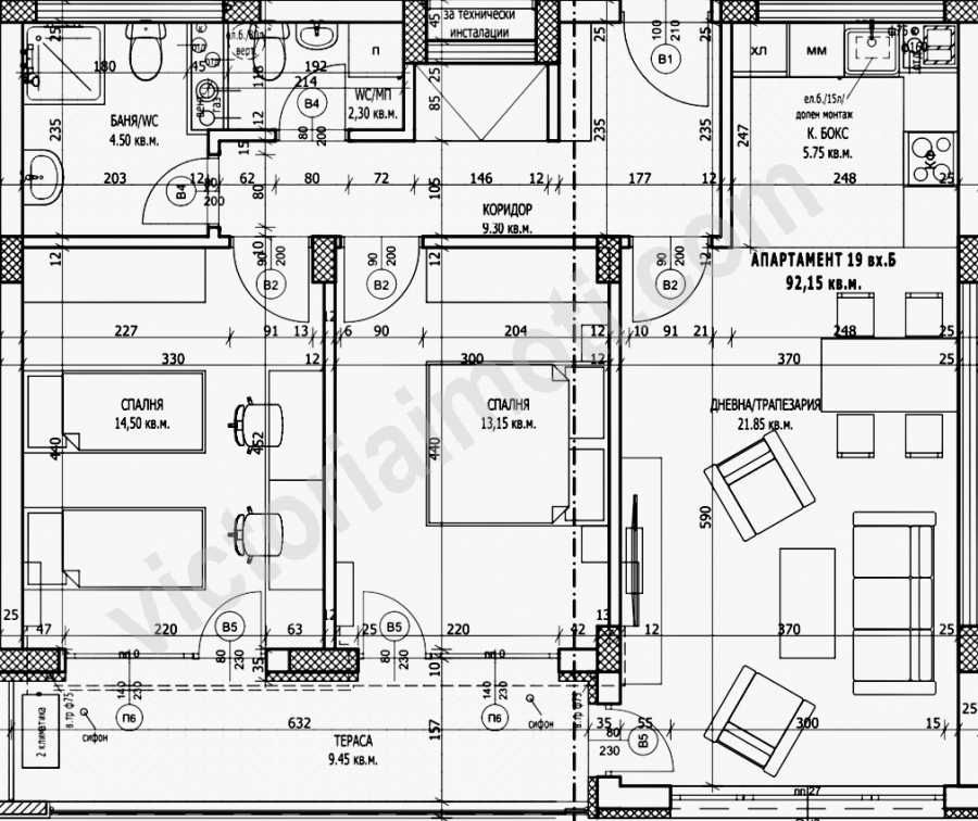
Самото жилище е разположено на пети междинен етаж с обща квадратура от 111.21 кв. м., от които 92.15 кв. м е чистата жилищна площ ,2.15 кв. м е избеното помещение, а 16.91 кв. м. са ид. ч. на сградата. Апартаментът е с изцяло южно изложение предлагащ се на шпакловка и замазка като включва дневна с кухненски бокс в един обем, две спални с излаз на тераса, коридор, баня-тоалетна, отделно тоалетна и тераса. Жилището е просторно и светло, което лесно би го превърнало във Ваш уютен дом. Сградата ще бъде въведена в експлоатация т.е. с наличен Акт 16 през декември 2025 г.
12953
Compare listings
Сравняване