Продава се Тристаен апартамент в Велико Търново, Зона Б – 89 кв.м за 1214 €/кв.м

  • 108,000€
  • 1,213€/m²
Област Велико Търново, гр. Велико Търново, Зона Б
  • Апартамент
  • Тип на имота
  • 89
  • кв.м
  • 2024
  • Година на строителство
За продажба Агенция
Област Велико Търново, гр. Велико Търново, Зона Б
  • 108,000€
  • 1,213€/m²

Накратко за имота

  • Апартамент
  • Тип на имота
  • 89
  • кв.м
  • 2024
  • Година на строителство

Описание

Екипът на Болярски имоти Ви предлагаме за продажба тристаен апартамент в новостроящ се жилищен комплекс в кв. Зона Б, гр. Велико Търново, който съчетава всички потребности на всички клиенти. Отлична локация, висококачествени материали, просторни и функционални жилища за всеки, зона за отдих и игри и не на последно място- гарантирани 100% места за паркиране. В непосредствена близост до него се намират, новопостроена Детска градина, парк, търговски обекти, училища.

Жилищния комплекс ще бъде затворен тип с ограничен достъп за външни лица. Състои се от две сгради, междублоково пространство със зона за отдих и детска площадка. Необходим брой паркоместа и гаражи за обезпечаване нуждите на всички живущи в комплекса.

Богат избор на просторни и уютни апартаменти, съобразени с индивидуалните предпочитания на всеки отделен клиент. Висококачествено строителство с модерни технологии и надеждни материали. Добре изолирани, енергоспестяващи сгради.

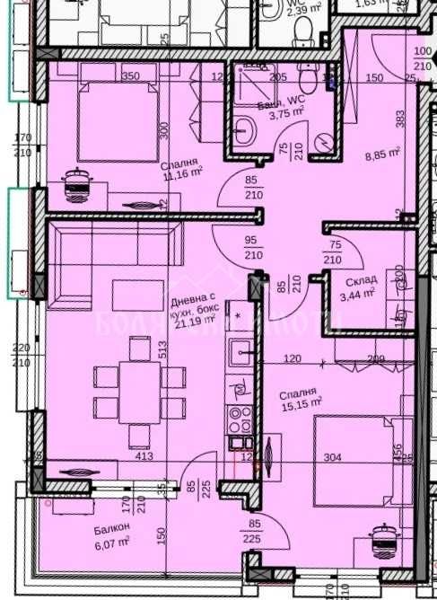
Характеристики на имота:

Застроена площ 106,02кв.м, общи части 11,74кв.м., обща площ 117,76кв.м. разположен на пети етаж.

Имотът включва просторна дневна с кухненски бокс (21,19 кв.м.) с тераса (6,07 кв.м.), спалня 1 (15,15 кв.м.), спалня 2 (11,16кв.м), баня с тоалетна (3,75кв.м.), склад (3,44 кв.м.)

С възможност за закупуване на паркомясто или гараж.

Реф. № 46232

Детайли

Обновено на януари 1, 1970 в 12:00 am
  • Цена: 108,000€
  • Квадратура: 89 кв.м
  • Стаи: 3
  • Година на строителство: 2024
  • Тип на имота: Апартамент
  • Операция: За продажба

Допълнителни детайли

  • Строителство: Тухла
  • Етаж: 5-ти
  • Брой етажи на сградата: 6
  • Отопление: Електричество
  • Обзавеждане: Необзаведен
  • Състояние на сградата: В строеж
  • Преход: Без преход
  • Град Велико Търново
  • Област Област Велико Търново
  • Квартал Зона Б
  • Държава България

0 Отзив

Sort by:
Leave a Review

    Leave a Review

    Compare listings

    Сравняване
    Olx Недвижими Имоти
    • Olx Недвижими Имоти