Екипът на Болярски имоти Ви предлагаме за продажба тристаен апартамент в новостроящ се жилищен комплекс в кв. Зона Б, гр. Велико Търново, който съчетава всички потребности на всички клиенти. Отлична локация, висококачествени материали, просторни и функционални жилища за всеки, зона за отдих и игри и не на последно място- гарантирани 100% места за паркиране. В непосредствена близост до него се намират, новопостроена Детска градина, парк, търговски обекти, училища.
Жилищния комплекс ще бъде затворен тип с ограничен достъп за външни лица. Състои се от две сгради, междублоково пространство със зона за отдих и детска площадка. Необходим брой паркоместа и гаражи за обезпечаване нуждите на всички живущи в комплекса.
Богат избор на просторни и уютни апартаменти, съобразени с индивидуалните предпочитания на всеки отделен клиент. Висококачествено строителство с модерни технологии и надеждни материали. Добре изолирани, енергоспестяващи сгради.
Характеристики на имота:
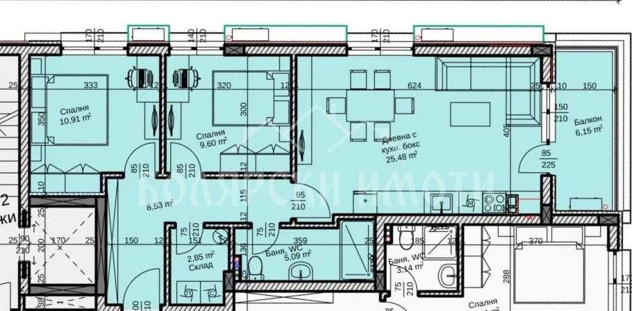
Застроена площ 79,88кв.м, общи части 8,69кв.м., обща площ 88,57кв.м. разположен на втори етаж.
Имотът включва просторна дневна с кухненски бокс (25,48 кв.м.) с тераса (6,15 кв.м.), спалня 1 (9,60 кв.м.), спалня 2 (10.91 кв.м), баня с тоалетна (5,09кв.м), склад (2,85 кв.м.)
С възможност за закупуване на паркомясто или гараж.
Реф. № 46219
Compare listings
Сравняване