Продава се в Царево – кв.м за 0 €/

  • 25,499€
Област Бургас, гр. Царево

Накратко за имота

Описание

МОБИЛЕН ДОМ ОТ НОВО ПОКОЛЕНИЕ

Дом изработен от солидна стоманена конструкция готова за ползване още утре според вашите желания и нужди.

НИЕ ПРЕДЛАГАМЕ:

– Изключително бърз монтаж, което го прави чудесен вариант за моментално нанасяне.

– Напълно готов за изполване – ел. инсталация, ВиК, подова настилка, окачен таван и довършителни елементи.

За повече инфомация не се колебайте да се свържете с нас на телефон +35*********07

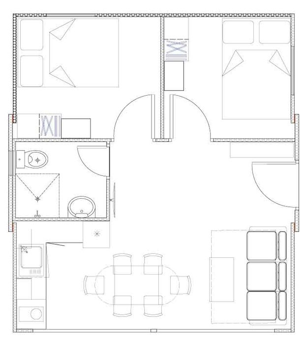
Размери :

6.72(Д) x 5.76см(Ш) x 2.7см(В)

Дължина/Ширина/Височина

Всекидневна и кухня – 19,7 m²

Санитарен възел – 2,5 m²

Спалня 1 – 7,3 m²

Спалня 2 – 7,3 m²

Приблизително тегло – 4 тона

Детайли

Обновено на януари 1, 1970 в 12:00 am
  • Цена: 25,499€
  • Операция: За продажба
  • Град Царево
  • Област Област Бургас
  • Държава България

0 Отзив

Sort by:
Leave a Review

    Leave a Review

    Compare listings

    Сравняване
    Olx Недвижими Имоти
    • Olx Недвижими Имоти