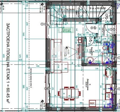
ЕРА Лайф обявява за продажба къща на два етажа в тих район с отличен асфалтов достъп в жк”Изгрев”, на около километър от главния булевард “Христо Смирненски” над Военна болница. Имотът е със следното разпределение: Първи етаж (60,45 кв.м.): входно преддверие – 2,31 кв.м., дневен тракт с кухненска част – 32,63 кв.м. с излаз на прилежащ двор 350 кв.м., баня с тоалетна – 4,49 кв.м. По вътрешно стълбище се достига втори етаж (75,08 кв.м.): стълбище/коридор – 17,96 кв.м., три спални – 10,69, 12,68 и 12,48 кв.м. Към имота има две паркоместа. Към имота като бонус се предлага и голяма изба с площ 50 кв.м.
Завършване: БДС – на шпакловка и замазка. Има и вариант имота да се довърши до грубия строеж. (156 000 E). Срок на въвеждане в експлоатация декември 2024г. Модерна съвременна визия и качествено строителство.
Къщата е близнак и е част от комплекс от три къщи. Автобусните линии обслужващи района са 10 и 13. Код: 0707880
Оферта №0707880
Compare listings
Сравняване