Продава се в Варна, Изгрев – кв.м за 0 €/

  • 264,000€
Област Варна, гр. Варна, Изгрев

Накратко за имота

Описание

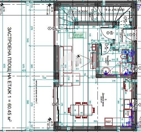
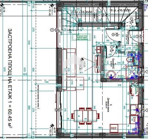
ЕРА Лайф обявява за продажба къща на два етажа в тих район с отличен асфалтов достъп в жк”Изгрев”, на около километър от главния булевард “Христо Смирненски” над Военна болница. Имотът е със следното разпределение: Първи етаж (60,45 кв.м.): входно преддверие – 2,31 кв.м., дневен тракт с кухненска част – 32,63 кв.м. с излаз на прилежащ двор 350 кв.м., баня с тоалетна – 4,49 кв.м. По вътрешно стълбище се достига втори етаж (75,08 кв.м.): стълбище/коридор – 17,96 кв.м., три спални – 10,69, 12,68 и 12,48 кв.м. Към имота се предлага голяма изба с площ 50 кв.м. В къщата е прокарано подово отопление и изводи за климатици. Имотът е ограден с каменна и зелена ограда. До Акт 16 остават около 3 месеца.

В цената са включени две паркоместа във вътрешния двор.

Завършване: БДС – на шпакловка и замазка. По желание на клиента е възможно и завършване до ключ. Схема на плащане: 10 % на предварителен договор и 90% на Акт 16. Срок на въвеждане в експлоатация декември 2025г. Модерна съвременна визия и качествено строителство.

Къщата е близнак и е част от комплекс от три къщи. Автобусните линии обслужващи района са 10 и 13. Код: 0707880

Оферта №0707880

Детайли

Обновено на януари 1, 1970 в 12:00 am
  • Цена: 264,000€
  • Операция: За продажба
  • Град Варна
  • Област Област Варна
  • Квартал Изгрев
  • Държава България

0 Отзив

Sort by:
Leave a Review

    Leave a Review

    Compare listings

    Сравняване
    Olx Недвижими Имоти
    • Olx Недвижими Имоти