Продава се в Варна, Погреби – кв.м за 0 €/

  • 44,000€
Област Варна, гр. Варна, Погреби

Накратко за имота

Описание

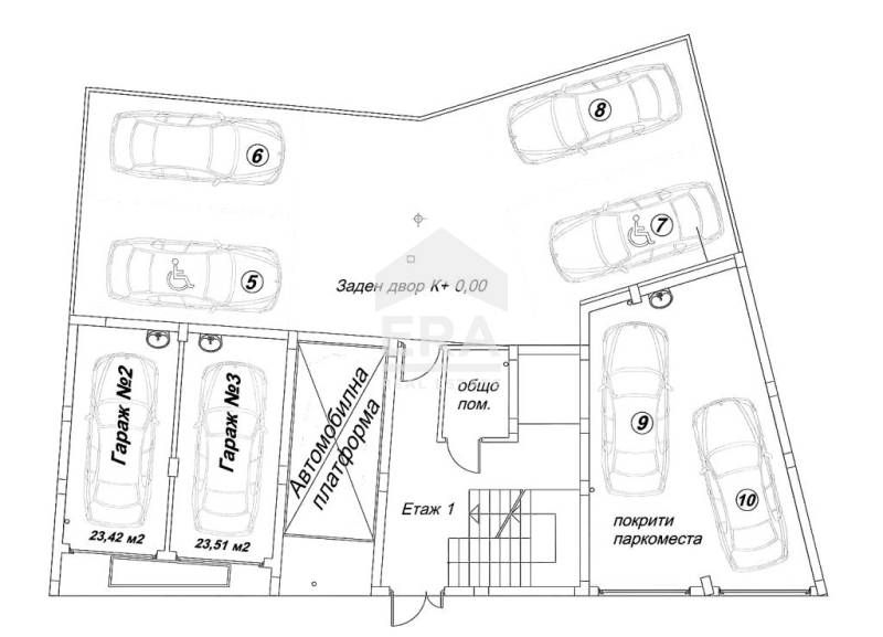
ЕРА Варна Тренд предлага за продажба работилница/склад в подземен паркинг, с английски двор, осигуряващ светлина. Имотът се състои от едно работно помещение с площ 55,16 кв.м и санитарен възел. Подходящ е за различни видове дейност. Продава се необзаведен. Ще бъде завършен до степен БДС. Отоплението ще бъде с електричество.

Търговският обект се намира в район Погреби, в седеметажна тухлена сграда с асансьор, на начален етап на строеж. Разрешение за ползване се очаква през 2025 г. Има възможност за допълнително закупуване на открито или закрито паркомясто, както и наземен гараж. Паркира се и свободно в района. Има възможност за разсрочено плащане.

Оферта №0219732

Детайли

Обновено на януари 1, 1970 в 12:00 am
  • Цена: 44,000€
  • Операция: За продажба
  • Град Варна
  • Област Област Варна
  • Квартал Погреби
  • Държава България

0 Отзив

Sort by:
Leave a Review

    Leave a Review

    Compare listings

    Сравняване
    Olx Недвижими Имоти
    • Olx Недвижими Имоти