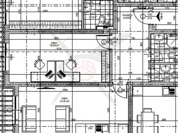
Офис

5628 Имота
Сортиране по:

Compare listings

Сравняване